Description
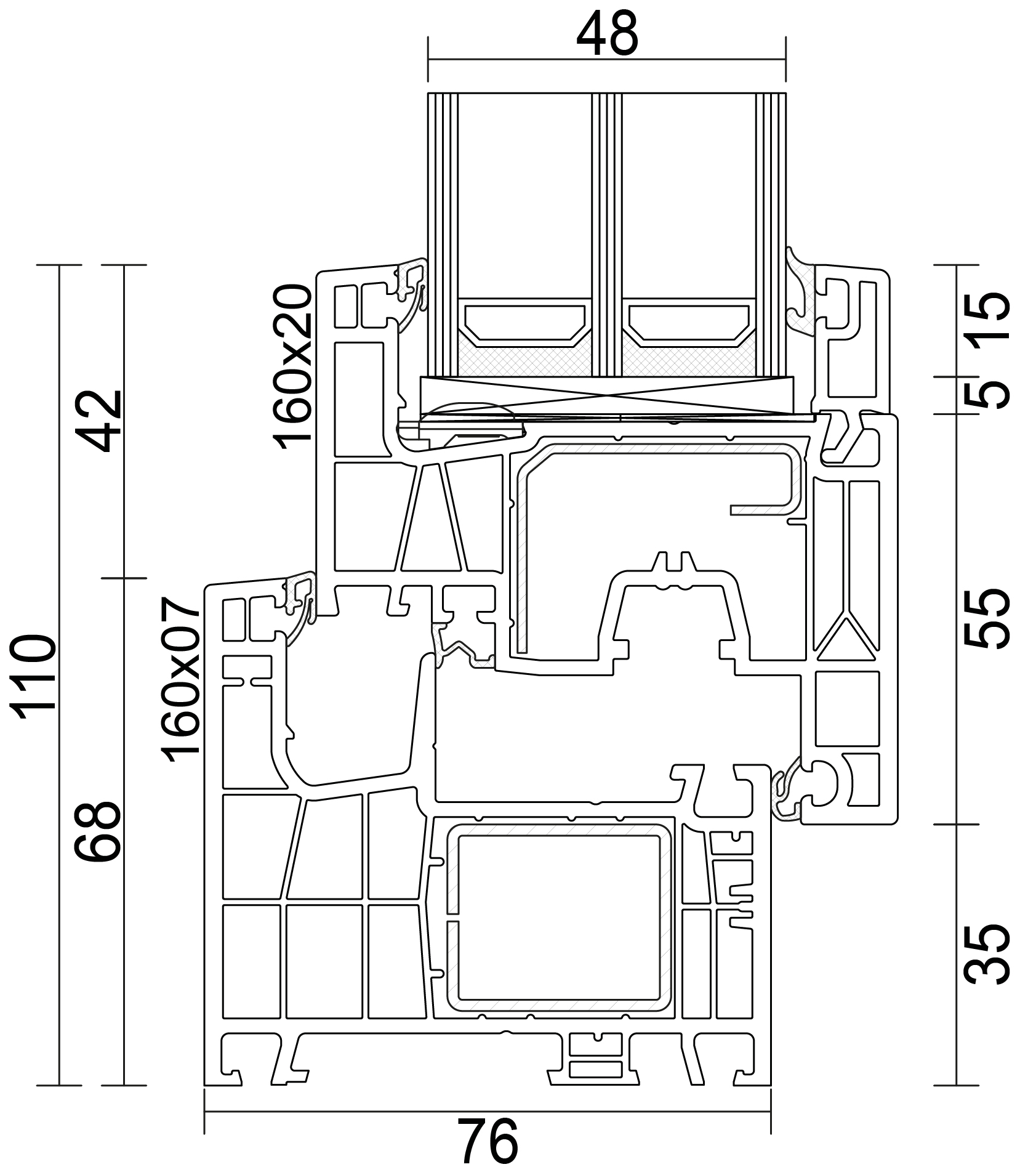
Najnowsza propozycja w ramach platformy NEO, wariant View to rozwiązanie z filigranowym skrzydłem całkowicie ukrytym za ramą.
NEO View wpisuje się w trend kreowania minimalistycznej optyki elewacji przy jednoczesnym zapewnieniu doskonałych właściwości cieplnych konstrukcji. Dzięki surowej, minimalistycznej formie, okna NEO View są perfekcyjną propozycją stylistyczną dla współczesnej architektury..



Reviews
There are no reviews yet.